Bushwick Inlet Park
Project Overview
The Bushwick Inlet Park transforms the Brooklyn waterfront from a brownfield industrial strip into a public park. Located in the Williamsburg section of Brooklyn, the design is the first step of an ambitious waterfront redevelopment along the East River. The design team has integrated a program of athletic fields, community facility and a NYC Park maintenance and operation facility into a 6.2-acre park.
The Park wraps over the building on the west side, turning the building into a green hill so that 100% of the site is accessible to the public. A zigzag path provides ADA access to the top, where a large wood-framed canopy provides shade and views over the play fields to the Manhattan skyline. Direct building access for the public and the Parks staff is provided from the street edge below.
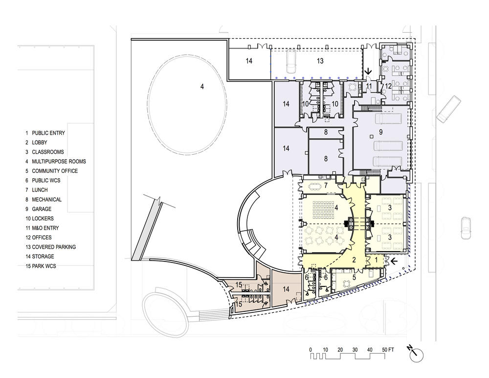
Program: The 13,300-square-foot ground floor is divided into the northern section which houses the maintenance facilities for the Department of Parks and Recreation, and the southern section which is a community center run by the non-profit Open Space Alliance. Each program area has its own separate entrance.
Phase 1 (the play field) opened summer 2010 and Phase 2 opened October 2013.
Design & Innovation
The initial program requirements just called for a LEED Silver building in a park. The design team, however, felt strongly that public space in a sensitive waterfront site required intensive integration of use, program, and environment, and should target a much higher environmental performance standard. The project maximizes public space, with the park rising up over the building. Under the northwest-facing green roof, the building is conceived as earth-sheltered, with controlled southeast and southwest solar exposures. Despite the subterranean experience of the building (with abstracted recycled aluminum tree-root chandeliers projecting through the lobby ceiling), all occupied spaces, including the lobby, have abundant natural light.
The all-electric, primarily solar-powered mechanical systems use no roof space for chillers, flues, or vents, and generate no noise or emissions. Irrigation of the green roof--a critical requirement for such an intensively used surface--is provided by captured rainwater and graywater from the playground sprinklers.
The building is designed as a useful and beautiful public space, inside and out, responding to the differing conditions of the city and the park. On the park side, the building and landscape are one; on the street side, the public facades features a colonnade of vertical wood sunshades marking the entrance to the most significant new park in north Brooklyn.
Regional/Community Design
The Greenpoint Williamsburg Waterfront Open Space Master Plan was developed in conjunction with many community groups, to address local concerns about the 2005 upzoning of the neighborhood and resultant increase in density along the waterfront. The park gives the community access to the waterfront, both physically and conceptually as it reinforces the neighborhood’s sense of place and relationship to Manhattan. It also provides park land and recreational opportunities in a neighborhood which had comparatively little open space. The athletic field is one of the most heavily used fields in the city, with soccer games running until 11:00 most nights.
North 9th Street was extended as a pedestrian path at the southern edge of Bushwick Inlet Park, reinforcing the existing street grid and continuing it to the water. The park was designed to continue the State Park’s pathways from the south and to link to the future phases of the Master Plan to the north.
The vast majority of visitors come by public transport or bicycle. Within a few blocks there is bus, subway, an East River Ferry dock, a bike path, a Citi Bike share dock, and many residents. The only parking provided is for park maintenance personnel, with six spaces under the green roof in the north yard, and two inside in the garage.
Metrics
Land Use & Site Ecology
A degraded industrial site is now a transect from city to nature, along the 850 feet from Kent Avenue to the East River. The plan maximizes park area for intensive urban use while incorporating comprehensive stormwater management, creating native plant communities, and restoring the river edge, the site’s most significant natural feature.
No stormwater from the site enters the local combined sewer system. Collected rainwater is stored and treated to irrigate the sloping green roof. The rest of the site, including the permeable athletic field and swale gardens, infiltrates rainwater into the ground, or, in severe storms, filters site overflow through a constructed wetland to join the East River, recreating a natural water cycle.
The sloping roof allows the entire building footprint to be usable park area, while an artificial turf field accommodates over 1,000 users per week. Bioswales flank the park paths to the waterfront, where a grass knoll and a permeable plaza give a tree-shaded overlook. The waterfront supports marine and avian life, with an off-shore island, a varied rocky edge, and marsh plantings.
The restored waterfront edge withstood inundation by Hurricane Sandy in with minimal damage, its native plants and tide pools unscathed, testament to its sustainable site design.
Bioclimatic Design
The building’s form is designed to optimize passive solar opportunities. The green roof slopes down to the northwest, sheltering the occupied spaces from western sun and prevailing winds, while the public façades with the most openings face southwest and southeast. These are shaded from summer sun by a horizontal roof overhang and vertical wood louvers oriented north south while allowing winter sun to penetrate. Windows in the brick façade have horizontal exterior shades which also act as light shades. Windows average 16% of wall areas, but are strategically placed to optimize daylighting, and all regularly occupied spaces are daylit and have operable windows.
Additional summer cooling is provided by the insulation, shading and evapotranspiration of the green roof, which varies from 12” to 30” in depth (including insulation).
Light & Air
Daylight: Despite the fact that the building is under a bermed hill, daylight is provided to all interior occupied spaces. Horizontal light shelves on the office windows in the maintenance facility reflect light further into the rooms.
Controls: All lights are controlled by time clock, occupancy sensors, and/or photocells for daylight harvest, managed by a central lighting control system.
Artificial Lighting: Interior lighting uses fixtures with high lumens/watt and a combination of ambient, task and accent lighting lowers energy requirements. Exterior lighting on the building is dark-sky compliant, and enhances the form of the structure.
Ventilation: All regularly occupied spaces have operable windows to allow natural ventilation. Mechanical ventilation is demand-controlled with a zoned system; each space with occupancy fluctuations is controlled by carbon dioxide sensors.
Metrics
Water Cycle
Green Roof Irrigation: Extending the park over the building is the primary design concept, and depends heavily on keeping the grass healthy and thriving. Since NYC DPR does not water their plants, irrigating the green roof using non-potable water was a critical design performance goal.
Rainwater is collected from plazas and the roof canopy, stored in a 15,000-gallon underground cistern and used exclusively for root-drip irrigation of the green roof. Using NOAA average rainfall data, the 17,500-square-foot green roof will be completely irrigated using harvested rainwater (46%) and harvested spray-ground gray water (54%), without any municipal potable water required. The spray-ground is a convenient and predictable water source, since in hot weather, high sprinkler use coincides with high turf evapotranspiration. In fact, a modest 80 minutes per day of summer spray-ground use can irrigate the entire green roof, without any rainfall harvesting at all. This is using a gray water resource that would otherwise be discarded into the municipal storm/sanitary system. Irrigation is managed by a Rainbird controller with rain gauge sensor.
Domestic Water Use: With almost one thousand daily visitors, the park has a high water usage for its size. Low flow fixtures save over 114,000 gallons annually, or 47% of the baseline.
Total Project Water Savings: The total annual potable water savings (including irrigation) exceed 500,000 gallons, or 35% of the baseline.
Metrics
Energy Flows & Energy Future
Bushwick Inlet Park has a high performance building envelope and mechanical systems, and energy modeling calculates it will save 51% of energy compared to Ashrae 90.1-2004 baseline.
Envelope: Thermal bridging is minimized by use of 12” thick autoclaved aerated concrete (AAC) block, and continuous interior spray-on glass fiber insulation, which also provides air sealing.
Mechanical Systems: Heating and air-conditioning is provided by ground source heat pump units. These units will reject/absorb heat to/from 15 closed-loop wells drilled to bedrock. Radiant floor hydronic heating is provided in all rooms except the garage, for efficiency, durability and comfort. Energy recovery ventilation units and demand-controlled ventilation are provided where appropriate. Dual temperature control or air-side economizers are introduced to most of the mechanical systems. Variable Frequency Drives (VFDs) control fans and pumps (with two-way valves).
Renewable Power: A 66.15 kWp photovoltaic canopy above the Upper Plaza generates 36% of the design case building electrical usage. No fossil fuels are used in the building, and the remaining electricity is partially wind power, per NYC green power purchase agreements.
Controls: The Building Management System (BMS) monitors outdoor conditions, space conditions and mechanical systems. Direct digital controls are provided for all aspects of the HVAC systems. Real-time energy use and production are displayed on an energy dashboard in the lobby.
Metrics
Materials & Construction
Exterior Materials: The building structure is high-content flyash concrete, chosen because of the form of the building. Vertical walls are either exposed concrete, brick or phenolic resin rain screen panels. The brick and phenolic panel facades are mounted to 12” thick AAC block back up, chosen for its insulating properties and lack of thermal breaks. Under the green roof, high-density expanded polystyrene (EPS) insulation was chosen for its low Global Warming Potential (GWP), as opposed to extruded polystyrene (XPS).
Exterior Wood: Vertical louvers and canopy structure are fabricated from FSC-certified glulam, designed to provide some visual warmth and accent to an otherwise cool material palette.
Interior Materials: Interior finishes were limited. Whenever possible, materials with integral color and long-term durability were selected for maintenance reasons. Floor finishes, for example, are polished concrete, rubber tiles, or seamless epoxy (in the six bathrooms). Spray-on thermal insulation is used extensively as the finished ceiling. The custom LED tree root chandeliers in the double-height lobby are fabricated from recycled aluminum.
Construction Waste: Over 90% percent of construction waste has been diverted from landfill. Approximately 10,000 square feet of granite roadbed cobbles were discovered during construction, and reused on site.
Long Life, Loose Fit
With over 29,000 acres of parks and a challenging budget, all new construction for the NYC Department of Parks and Recreation must be designed for low operating costs. A pre-schematic programming/LEED Kickoff conference in 2008 included client-side representatives such as park plumbers, landscapers, supply-clerks and district supervisors, who reinforced the need for a robust and low-maintenance facility.
Finishes are mostly seamless and integrally-colored, such as polished concrete floors (see materials section). Mechanical systems such as ground-source heat pumps and radiant floors are protected from wear and tear and are typically low maintenance. The rainwater harvesting system incorporates vortex units to separate out impurities, a low-tech method that does not require filters. Below grade root-drip irrigation makes maintenance of the green roof easier. Exterior on-grade finishes, like pavers and cobbles, are durable and simple to maintain. All planting beds are filled with native plants with minimal requirements for tending. Many light fixtures, especially the exterior ones, are LED which have a very long life. Playground equipment is standardized for easy and prompt repair. Exterior metalwork is type 316 stainless steel, selected at premium cost to resist salt corrosion. The roof membrane underwent rigorous third-party electrical conduction leak detection testing (specifically EFVM protocols) prior to the placement of the green roof overburden, and is expected to last well beyond its 15-year warranty.
The design incorporates flexibility of use with movable walls to divide the two larger multipurpose rooms into four smaller rooms. Open work spaces allow flexible furniture configurations for future changes in use.
Collective Wisdom & Feedback Loops
A pre-schematic sustainability charrette in 2008 included people from all aspects of the design team and client's organization, from a consulting ecologist to the client's maintenance staff. During this meeting the client agreed to the higher environmental performance goals proposed: LEED Platinum rather than LEED Silver, and an all electric building with a PV array to offset as much as possible of the building's energy usage. These goals were reflected in the Owner's Basis of Design document completed shortly after.
Early energy modeling done during schematic design helped inform the design of the building and its systems. The design team hired a commissioning agent with an enhanced scope to ensure that the built project met the early environmental goals that were set, and are still finishing that process. Measurement and verification will also be undertaken to check that performance of the building is as predicted or better.
The building has been toured extensively by public officials, DPR staff, local community groups and during the NYC AIA Archtober event. An upcoming tour is also being organized by Urban Green (the local USGBC chapter), and we have produced interpretive posters for the lobby explaining the sustainable features of the building.
Other Information
Photovoltaic: The 210 solar panels and associated balance of systems was bid at $225,000, considerably more than the design team estimate. The un-rebated annual electrical value is valued at $10,227, which results in a 17-year payback, using actual bid prices and assuming historic trends of 2.5% annual rate increases.
Water Harvest: The complete irrigation water harvest system was bid at $150,000, considerably more than the design team estimate. The annual baseline water savings of 378,000 gpy is valued at $4,437, which results in a 17-year payback, using actual bid prices and assuming historic trends of 8% annual rate increases.
The project was required by contract to be a minimum LEED 2.2 silver, but paybacks (either individually or combined) were not required or requested.
The fundamental flaw of payback-on-investment is that it is based on cost, rather than value. For an extreme example, Mark Sevoir from Solar Design Associates once noted, “Unfortunately, the best energy paybacks are from coal-fired electrical plants, not from rooftop solar.” This is economically true, in the short-term market perspective that currently dominates our society. However, once externalities such as global warming, pollution, flooding, ecological collapse, conflict over diminishing resources, environmental refugees and other hidden costs are properly accounted for, the economic benefits of green design become more compelling, perhaps measured in days or hours rather than years.
Predesign: Following the passage of the 2005 rezoning plan, NYC Parks developed the Greenpoint-Williamsburg Open Space Master Plan, with the goal of eventually building up to 50 acres of waterfront park along 1.6 miles of the East River. Due primarily to unexpectedly high soil remediation and land acquisition costs, this Plan has been slow to implement, which has frustrated the local community. Bushwick Inlet Park was the first major portion constructed. Because of this, a primary design goal was to maximize open space to the greatest extent feasible, which informed the shape of the building.
Design: Starting with high environmental performance goals, the design phase required extensive coordination among the different disciplines, particularly architecture, landscape, civil, MEP, structural, green roof specialist, and the water harvesting engineer.
Bushwick Inlet Park required 28 separate permits or approvals, as well as a land-use agreement with the adjacent NYS property. The team designed the project around not only budget and program, but also key long-lead permits, particularly DEC Tidal Wetlands.
Construction: Since the project was built in two phases, and involved five separate prime contractors and bid packages under NYS Wicks Law, the design had to be carefully divided among the various contracts. For example, the cistern and root-drip irrigation was installed under the General Construction contract, but the cistern pump, irrigation controller and internal piping was installed under the Plumbing contract. The integrated building systems designed for Bushwick Inlet Park (like the radiant slab and ground-source heat pumps) presented special liability and warranty challenges under Wicks Law mandates.
Additional Images
Project Team and Contact Information
| Role on Team | First Name | Last Name | Company | Location |
|---|---|---|---|---|
| Staff Architect | Heather | McKinstry | Kiss + Cathcart, Architects | Brooklyn, NY |
| Project Manager | Jeff | Miles | Kiss + Cathcart, Architects | Brooklyn, NY |
| Owner | NYC Department of Parks and Recreation | New York, NY | ||
| Landscape Architect | Stephen | Whitehouse | Starr Whitehouse Landscape Architects and Planners PLLC | New York, NY |
| Structural Engineer | Scott | Hughes | Robert Silman Associates | New York, NY |
| Civil Engineer | Langan Engineering & Environmental Services Inc. | New York, NY | ||
| Environmental Engineer | Langan Engineering & Environmental Services Inc. | New York, NY | ||
| Marine Engineer | Langan Engineering & Environmental Services Inc. | New York, NY | ||
| MEP Engineer | A.G.Consulting Engineering, P.C. | New York, NY | ||
| Lighting Design | Abhay | Wadhwa | AWA Lighting Designers | New York, NY |
| Green Roof Consultant | Charles | Miller | Roofmeadow | Philadelphia, PA |
| Site Engineering | Bill | Ackerman | Wesler-Cohen Associates | Amityville, NY |
| Energy Modeling | Umit | Sirt | Taitem Engineering, PC | Ithaca, NY |
| LEED Consultant (construction) | Crista | Shopis | Taitem Engineering, PC | Ithaca, NY |
| Rainwater Harvest | Geosyntec Consultants | Brookline, MA | ||
| Cost Estimator | Accu-Cost Construction Consultants, Inc. | New York, NY | ||
| Specifications | Aaron | Pine | Construction Specifications, Inc. | Morganville, NJ |
| Commissioning | Lou | Vogel | Taitem Engineering, PC | Ithaca, NY |
| Code Expediter | Sisto | Martello | Design 2147 | Brooklyn, NY |
| LEED Consultant (design) | Larsen | Plano | Community Environmental Center | Queens , NY |
| Construction Management | John | Hartmann | URS Corporation, Inc | NY, NY |
| Construction Management | Robert | Roslewicz | URS Corporation, Inc | NY, NY |
| General Contractor, Phase 1 | Damien | Ricci | William A Gross Construction Associates | NY, NY |
| General Contractor, Phase 2 | Mikhail | Zeygman | Perfetto Contracting Co., Inc | NY, NY |
| MEP Contractor, Phase 2 | Douglas | Moore | CDE Air Conditioning Co., Inc. | NY, NY |
| Electrical Contractor, Phase 2 | Barney | Hedberg | Dynamic Electric Systems, Inc. | NY, NY |
| Plumbing Contractor, Phase 2 | Danielle | Maglio | Lafata-Corallo Plumbing and Heating, Inc. | NY, NY |




















The building has a really strong integration of building and landscape to revitalize the waterfront creating a highly usable all-season space in a dense, urban environment. Creates a unique space for that neighborhood in the winter. Their use of plants incorporates turf areas for recreation where appropriate yet they're framed by native plants to absorb and clean water while providing habitat for various species. Interplay between roof, landscape and interior spaces. The roof functions well for exterior seating and circulation while directing light into interior spaces. Despite its vast green space, the project uses no potable water for irrigation.