Iowa Utilities Board / Office of the Consumer Advocate Office Building
Project Overview
Located within the State of Iowa Capitol Complex, this project is an infill development on the 6-acre site of a former landfill. As a gateway to the complex at its Southeast corner, the project is a figural and literal threshold to the powerful example of government—supported by location and by its demonstration of replicable strategies for performance and savings, proving that the challenge of elegant design and exemplary performance can be solved even within limited budgets.
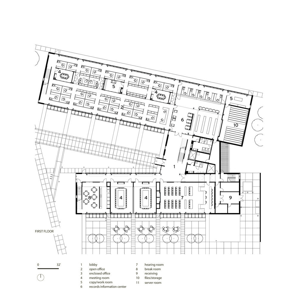
The building is organized in two wings joined by a central lobby. The north wing comprises the State Utilities Board on two levels, while the south wing houses the State’s Consumer Advocate Office on level two and common spaces on level one. It sits as a symbol of the sustainable stewardship of the State of Iowa by demonstrating proven, cost-effective energy efficiency measures.
Owner's Narrative:
The Iowa Utilities Board – Office of Consumer Advocate (IUB-OCA) proposed a model energy-efficient building to be a leader in reducing electric demand using proven technologies. Our goal was to be a teaching model for business and government buildings in Iowa to save kilowatt hours through energy efficiency. As a utility regulator/consumer advocate with statutory responsibility for overseeing and approving utility company energy efficiency plans (IUB), and representing customers (OCA), it was a natural fit for our co-located office to undertake this approach when an expired lease required us to find a new location.
The goal from the start was to save kilowatt hours. Every decision was made with that goal in mind. The project was completed on budget. After three years in the building, we have exceeded our initial goal beyond our imagination. The energy cost savings are significant.
The environmental change for our staff was also significant. We moved from a converted warehouse with very few windows and tall partitions into a daylight-enhanced building with low-partition systems furniture. Employees and visitors comment on the uplifting effect of natural light. This move naturally required an adjustment period including alterations to computer monitor orientation in relationship to daylighting. In addition, control of shades was given to staff, so that the amount of light filtering into the building can be controlled by users as required.
The most prominent benefit is the impact our employees have on the building energy use. The integrated design process worked well and the systems installed--daylighting, efficient lighting technologies, high performance windows, geothermal, thermal mass, photovoltaic panels, and water filtering--have performed as modeled. The main reason for exceeding our energy goal is the behavior of staff, who adopted and supported the protocols for minimizing energy consumption.
Sensors arranged throughout the building collect energy data which is sent to the Iowa Department of Administrative Services and shared with the IUB-OCA. Examples include building air humidity and temperature, geothermal system flows and temperatures, solar energy generation, and building electric demand. The data is used to compile energy performance metrics allowing us to track energy use and to verify our goals are met.
Design & Innovation
It’s impossible to tell the story of this building without mentioning its core goal: an energy use intensity of 28.0 kBtu per square foot per year, equivalent to 69% energy savings beyond the national office building average (CBECS 2003). As home to the regulator of utilities, leading by example is an appropriate mission. Every decision—from envelope to materials to controls—was made with this goal in mind. The project demonstrates a “net-zero-ready” approach. Loads were reduced to the point that on-site renewable energy is appropriate, knowing more can be added later. The sound and affordable strategies, when innovatively maximized for efficiency, are a model for replication in other facilities. Following two years of occupancy, the building is currently consuming 16.7 kBtu/sf per year, equivalent to an 81.5% reduction over the national average.
Complementary to the visionary energy goal, a focus to demonstrate practical and affordable methods of achieving high-performance became paramount in order to realize an impact beyond the project’s own site and energy bill, through post occupancy measurement and verification, research partnerships, outreach, and educational tours. The building has become a living laboratory, demonstrating a visionary level of elegant and efficient workspace design.
Regional/Community Design
As a state government building sited at the southeastern corner of the Capitol Complex, the building represents the political temperature of the State. In particular, its strong sustainability goals represent significant commitment to model positive development by the State and its agencies. It’s also a symbol of efficient use of the State’s limited resources—an outward expression of environmental responsibility.
The Capitol is a significant hub for metro-area transit options, as all city routes are available on site or within one transfer. Preferred parking is available on site for vanpools and alternative-fuel and hybrid vehicles; showers are provided to encourage cycling and walking; and parking was reduced to the minimum allowed by local code.
In recent years, the state has experienced catastrophic flooding, leading to comprehensive stormwater strategies for the site, which treats water from 12 acres: the six-acre site and six acres of adjacent land. Additionally, due to the agricultural economy present in the state, water quality is of chief concern. Appropriately, the State Capitol complex is employed as an opportunity to demonstrate stormwater quantity and quality control strategies that are relevant to the entirety of the state.
Walkscore: 75 out of 100
Metrics
Land Use & Site Ecology
The southern half of the six-acre site employs two site strategies for strong site ecology: a native prairie restoration and a treatment train to filter and capture on-site stormwater (plus that of six additional acres of off-site diverted stormwater).
The building sits at the northern edge of the site, where the landscape transitions to a more formal expression in order to connect this site to that of the larger Capitol Complex. The entrance courtyard is comprised mostly of beds filled with little bluestem, a dominant species in the pre-development history of the state. These more organized plantings extend the building into the landscape while showcasing a symbol of the state’s natural history.
Tall-grass prairie once covered the majority of the state. The native prairie restoration, while serving as a symbol of the pre-development condition of the landscape, also serves as a demonstration component that can be effectively replicated for other projects throughout the state. The prairie has multiple benefits in that it comprises significant components of the stormwater treatment train, slows the rate of stormwater flow and establishes a wildlife habitat. The native landscape eliminates the need for site irrigation.
Bioclimatic Design
Proper east-west orientation and a narrow north-south building configuration provide the most appropriate daylighting and natural ventilation opportunities. West and east elevations are designed only to accept specific views to mitigate excessive heat gain and glare.
In this climate of hot/cold extremes, white precast concrete (with continuous insulation and non-thermally conductive ties) provides a simple yet high-performance envelope, eliminating traditional thermal bridging at roof interfaces, foundation walls and wall openings. The team innovated details that allow insulation to wrap uninterrupted from the roof into the thermal wythe of the wall panel and then down and around the foundation system and across the underside of the slab on grade. These detail innovations are now being delivered as “standard options” in the manufacturer’s offerings.
Thermal mass captures “free heating,” modulates temperatures and, thus, reduces loads. The geothermal well field uses the earth’s constant temperature to offset heating and cooling loads. High-performance glass is tuned to the characteristics of each elevation’s exposures.
The building automation system identifies favorable exterior conditions, sending an email to occupants when windows should be opened and closed. The automation system shuts down the associated zone’s heat pumps when windows are open, ensuring energy is not wasted.
Light & Air
An ideal building footprint depth is employed to deliver daylighting throughout. Louvered sunscreens, with horizontal blades and vertical fabric panels at the south elevation, reflect daylight deeply during all seasons, block unwanted summertime heat gain and allow passive winter heating. The parabolic profile reflects high-elevation summer sun off of the curved portion and low winter sun angles off of the flat portion of the louvers. Zinc-clad office enclosures cantilever from the north elevations, taking advantage of diffused northern light.
Daylight modeling led to open-office workstations selection, demonstrating a significant performance increase by implementing low furniture panels with translucent upper panels. At the core of the building, the selected furniture supports the required footcandles at the work surface without artificial lighting 70% of the time (vs. 30% of the time with owner’s previous 64” tall furniture). Solatube skylights at the core deliver additional daylighting.
A combination of scheduled and occupant control of roller shades is successful at optimizing a balance between comfort, daylighting, and energy savings.
An overarching theme of interconnection between the interior and the exterior context is carried throughout. Ultimately, more than 98% of regularly occupied spaces have daylight and views. All employees have access to operable windows.
Metrics
Water Cycle
From a site perspective, 100+% of the average annual rainfall event that falls upon the site is infiltrated and treated, along with the diverted adjacent site stormwater. The resulting native prairie landscape is an integral part in the stormwater management system employed on site; it purifies water using native plants for increased downstream water quality and eliminates the need for irrigation.
The stormwater treatment train consists of a stormwater interceptor, infiltration basin, rain gardens, bioswales and pervious pavement. Stormwater enters the landscape through a limestone boulder sediment trap that slows water and controls erosion. It moves across the native prairie restoration into infiltration basins planted with native grasses (root structures host organisms that feed on suspended pollutants). The basins have valves to regulate the system when plants are being established or for longer detention during storm events. Native species encourage additional infiltration with a lower runoff coefficient. Simple farm terraces throughout the state inspired the process of water movement across the landscape while moderating steep site slopes.
Inside, a simple and replicable strategy (ultra-low-flow plumbing fixtures, faucet aerators and automatic sensors to reduce water flow) contributes to a water use reduction of 46% compared to a typical office building.
Metrics
Energy Flows & Energy Future
Optimal orientation and massing, along with a hyper-efficient building envelope, mean the building design contributes to a secure energy future. Currently the building is consuming 16.7 kBtu/sf per year as compared to the design model of 28 kBtu/sf per year.
- Geothermal field tied to dual-stage heat pumps accounts for 39% of total energy savings
- A total energy recovery unit provides 12% of the total energy savings
- Many smaller strategies make up the other half of the energy savings goals: Variable frequency drives; high-efficiency, low power density lighting; automated dimming for interior lighting; occupancy sensor for lighting and workstation plug loads; time-of-day control of office equipment plug loads; and CO2 sensors for moderated control of ventilation air.
- As a result of total reduced energy needs, a roof-mounted 45 kW photovoltaic array currently provides 25% of the building's power needs as opposed to the 13% originally modeled. Onsite renewable energy was only considered after first implementing a net-zero ready process that reduced loads through passive means and delivered them efficiently.
While significant plug load control measures were implemented into the architecture of the building, it is the occupants who have embraced a culture of energy conservation that has led to significant plug-load savings over the design case model.
Metrics
Materials & Construction
The project team carefully selected finishes based on a number of criteria: cumulative reduction in material use, inherent qualities, integration with the overall design, contribution to a healthy environment, and embodiment of the state’s efficient use of limited resources.
Materials and detailing throughout share a common thread of material duality, enabling singular material systems to serve multiple purposes. The interior finish of the precast panels for example, exposed as a lightly sandblasted hard-troweled concrete finish, saved significant material and cost. The reduction in materials also freed finances for achieving energy goals, such as the geothermal bore field.
Individual staff member recycling containers and ease of access to expanded recycling in the break room by both staff and guests has ensured a successful onsite material recycling program.
- 35% of total material content was recycled
- 67% of materials were regionally extracted, harvested and fabricated
- 96% of wood used was FSC certified
- 89% of construction waste was recycled
- Agrifiber, a rapidly renewable and regionally sourced material, was used for door cores
- Furniture achieves Cradle-to-Cradle certification or equivalent standard
- Low-VOC materials used throughout
- All furniture within the project is Greenguard certified at a minimum
Long Life, Loose Fit
The building’s parti, with two wings emanating from a central lobby, supports long-term flexibility. The wings, or bars, were chosen to support a seamless future addition to the south should the need arise. Each wing utilizes an open plan configuration where the notion of modularity, a means to support efficiency and long–term growth, is articulated in a repeating bay rhythm of 21-foot-wide occupied zones separated by 4-foot side cross aisles. This motif appears in both wings and defines the spatial organization for the program and the architecture. This organization strategy further allows the space to adapt to changes or relocation of staff.
Conference areas were sized and designed to serve the entire Capitol Complex. Large conference rooms employ an operable partition, allowing them to be scaled up or down for various needs. The hearing room is “right sized” for typical crowds and includes A/V connections that support overflow viewing in the adjacent large conference rooms. Furthermore, durable materials such as zinc cladding and precast concrete wall panels allow for a 100-year useable life, no matter the tenant.
Collective Wisdom & Feedback Loops
A comprehensive energy measurement and verification (M&V) plan measures energy use of all building systems. Real-time data is monitored and analyzed to improve building performance through a partnership with the State of Iowa Department of Administrative Services and the Iowa Energy Center. The Energy Center will further use results to support various research projects.
As part of this monitoring, all outlets are designated as critical power, non-critical power, or task lighting. Workspace outlets are tied to occupancy sensors that shut down all non-critical loads when not in use (everything except CPUs). Task lighting circuits are individually monitored as part of a larger daylighting study.
M&V Initiatives:
- Monitor all major building systems
- Provide additional system optimization and associated energy savings
- Facilitate research through collection of data and analysis
- Facilitate outreach and education
- Further the building’s demonstration component to encourage replication of strategies employed
- Advanced study of building simulation energy modeling: Four energy models were developed and compared against actual energy consumption; design code baseline, building adjusted code baseline, design model, calibrated model, and actual consumption
- Occupant survey implemented in concert with M&V to optimize systems and occupant comfort.
Other Information
The project engaged with the Mid-American Energy New Commercial Construction Program, which provided a utility-based incentive for implementation of efficiency measures. The program was used as a decision-making tool during design to evaluate cost payback on a case-by-case basis as well as in total so as not to exclude items that offered a synergistic multiplier effect.
The incremental construction cost, with added efficiency measures, was $261,721 (exclusive of PV). The Utility incentive was $118,400. Project adjusted incremental cost considering this incentive was $143,321. Although modeled payback with incentive would occur in just 4.6 years, actual measured annual energy savings of $40,172 will result in payback in just 3.5 years. A grant through the Iowa Office of Energy Independence covered half of the cost of PV installation.
Predesign:
The site selection was made to support appropriate solar orientation and ideal daylighting across the floor plate depth. The context of the existing capitol complex made the community relationship stronger and reduced development needs due to the fact the building could use adjacent parking to serve visitors, as well as shared campus facilities. Existing infrastructure was used for on road parking, reducing the need for additional paving.
Design:
From day one, the goal of exemplary energy performance was the primary driver for every decision. An integrated team process delivered verified results—from building placement, to assessing open office vs. enclosed office relationships, to material selection and configuration, to the complete integration of all strategies and systems.
In particular, the team pursued innovative designs in the envelope and daylighting strategies to further the goal. The envelope was obsessively detailed to avoid thermal bridging; the parabolic louvers were modeled to exceed the performance of traditional louvers for bringing daylight deep into the building.
Post Occupancy Optimization:
Building monitoring and tuning during the course of occupancy has yielded a few minor changes that made a big impact. Roller shades were installed at the North open office area to mitigate glare from the unanticipated snow reflectance. Lenses at specific Solatube diffusers were revised to provide more appropriate daylighting levels specific to occupant and location. Errors in the energy recovery ventilator (ERV) operations sequence were identified through monitoring and building automation system interface. This discovery led to engagement with the manufacturer to fix the problem, allowing the building to operate and achieve energy savings as intended.
Additional Images
Project Team and Contact Information
| Role on Team | First Name | Last Name | Company | Location |
|---|---|---|---|---|
| Landscape Architect | Jim | Schuessler | BNIM | Kansas City, MO |
| Civil Engineer | Jerod | Gross | Snyder and Associates | Ankeny, IA |
| Structural Engineer | Brad | Storck | Charles Saul Engineering | Des Moines, IA |
| MEP Engineer | Scott | Bowman | KJWW Engineers | West Des Moines, IA |
| Energy Modeling | Jason | Steinbock | The Weidt Group | Des Moines, IA |
| Daylight Modeling | Ramana | Koti | BNIM | Kansas City, MO |


























The building has a subtle connection to the Iowa landscape that's both respectful and revelatory. Facades are designed to respond to solar orientation with very different, yet compatible characters. It’s simple lines and quiet elegance extends into interior spaces. A restored native prairie landscape sits atop a geothermal field incorporating an infiltration basin for this and the neighboring site. The project takes a very comprehensive and integrated approach toward environmental strategies and in the process ticks all the right performance boxes including energy recovery, daylighting and renewables. This combination of strategies allows the project to exceed all performance predictions.